Oferta specjalna budowy domu wg. projektu Dom Doskonały – 90,00 m² w cenie 345 000 zł netto
Opis domu
Odkryj Dom Doskonały – naszą unikalną propozycję domu o łącznej powierzchni użytkowej 90 m². Ten projekt łączy najwyższej jakości materiały i staranne wykonanie, oferując to wszystko w atrakcyjnej cenie. Dom Doskonały jest znakomitą opcją dla tych, którzy poszukują alternatywy dla mieszkania w bloku, z dodatkowym atutem posiadania własnego ogrodu.
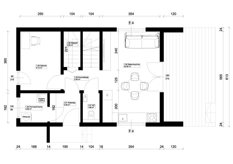
Dom został zaprojektowany z myślą o maksymalnym wykorzystaniu przestrzeni i składa się z dwóch poziomów – parteru i poddasza, z których każdy ma po 45 m². Parter to otwarta przestrzeń, łącząca salon z kuchnią, co czyni go idealnym miejscem do życia rodzinnego i rozrywki. Znajdziesz tu również komfortowe WC oraz wielofunkcyjny gabinet, idealny na domowe biuro lub dodatkową sypialnię.
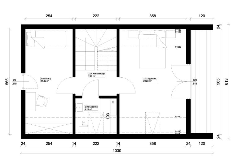
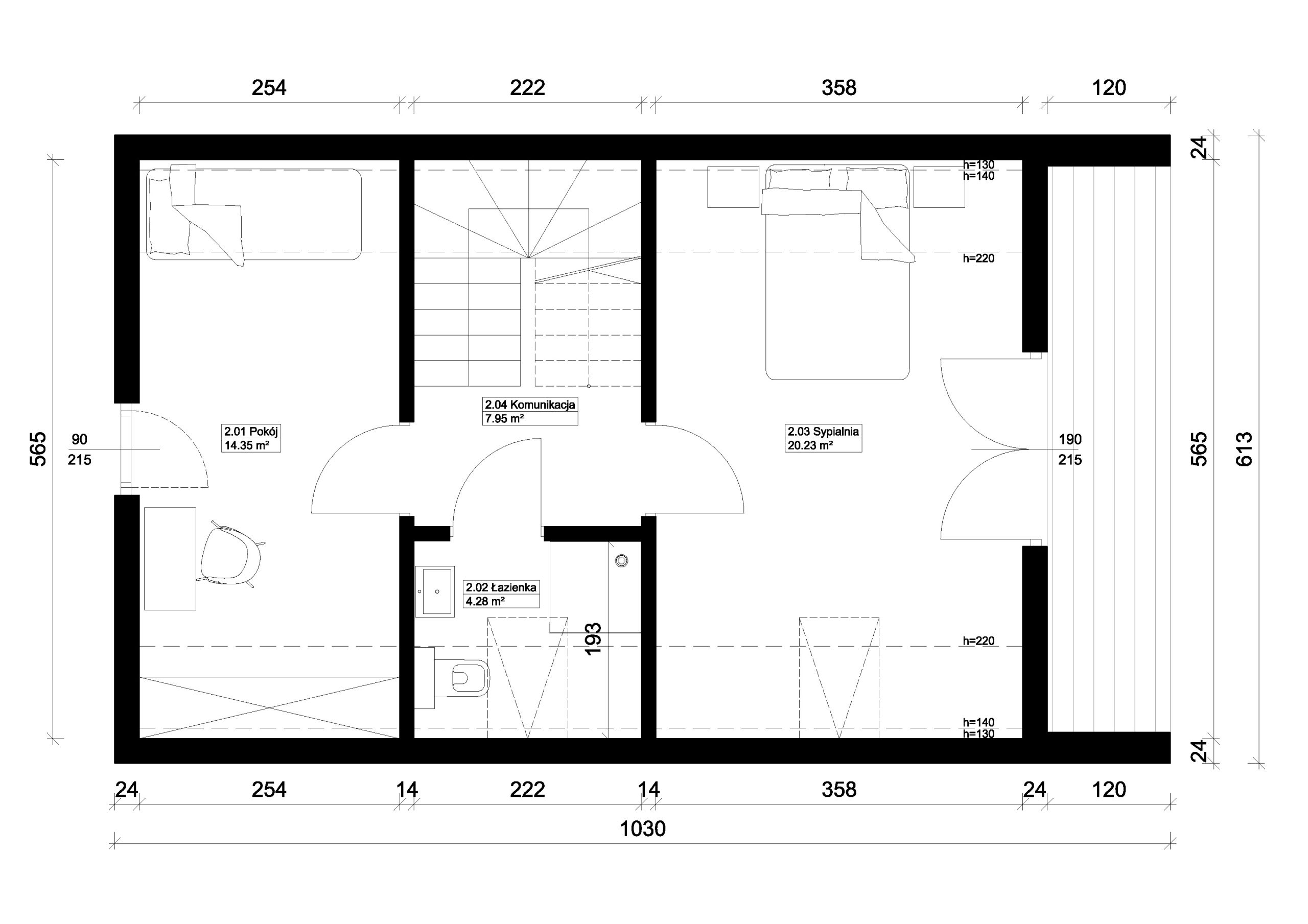
Poddasze oferuje trzy sypialnie, które gwarantują prywatność i wygodę dla każdego członka rodziny. Łazienka i garderoba na tym poziomie zwiększają funkcjonalność domu, oferując dodatkową przestrzeń do przechowywania.
Wybierając Dom Doskonały, decydujesz się na połączenie jakości, przestronności i nowoczesnego designu, co sprawia, że każdy dzień w Twoim nowym domu będzie wyjątkowy.
Ten dom możemy wybudować w różnych wersjach dachu:
dach dwuspadowy
w stylu nowoczesnej stodoły
dach tradycyjny dwuspadowy
Koszt budowy
Ten dom może być Twój już w kwocie
345 000
PLN netto
Spełnij z nami swoje marzenia. Wybudujemy dla Ciebie ciepły, komfortowy dom, w którym odpoczniesz po pracy i poczujesz się wyjątkowo dobrze.
Nasza specjalna oferta domów zapewnia najlepsze materiały i wykonanie w przystępnej cenie. A za zaoszczędzone pieniądze wykończysz ogród i zorganizujesz najlepszego grilla na jakim byli Twoi znajomi w życiu.
Wszyscy będą Ci zazdrościć!
Układ pomieszczeń
Nasza specjalna oferta daje Ci możliwość wyboru jednego z wielu gotowych układów pomieszczeń. Możesz również wprowadzać zmiany w układzie tak, żebyś spełnił Twoje potrzeby.
Powierzchnia użytkowa
90,00 m²
Najważniejsze cechy
2 sypialnie
duży salon
idealny dla 2+1
Oferta specjalna
Jeśli podane wersje rzutów nie spełniają Twoich oczekiwań – nie martw się – możemy specjalnie dla Ciebie przygotować dowolną, indywidualną koncepcję.
Poznaj nas lepiej i powierz nam budowę swojego domu
Domy, które budujemy są
Solidne
Twój dom zostanie wybudowany z najlepszych materiałów jakimi dysponujemy. Jego ściany będą solidne i mocne. Nasze biuro architektoniczne dba o to żebyś czuł się w swoim domu bezpieczny.
Energooszczędne
Oryginalny Ytong Energo+ o grubości aż 36,5 cm zapewni Ci niesamowicie energooszczędny dom na miarę XXI wieku, spełniający wszystkie normy i standardy nowoczesnego, ciepłego budownictwa.
Szybko powstają
Doświadczona kadra pracowników, która jest odpowiedzialna za budowę Twojego domu to gwarancja szybkiego czasu jego powstawania. Twój dom wybudujemy w 3, TAK TYLKO 3 miesiące od wejścia na plac budowy!
Adaptacja projektu
Jesteśmy otwarci na Twoje indywidualne potrzeby, dlatego możesz wprowadzić zmiany w tym projekcie.
Nasze biuro projektowe pomoże Ci dobrać najbardziej optymalny układ pomieszczeń.
Technologia szkieletowa
Konstrukcja z Drewna KVH
Konstrukcja domu w technologii szkieletowej jest oparta na drewnie KVH – to nowoczesny, solidny materiał konstrukcyjny o szerokim zastosowaniu w budownictwie. Drewno KVH charakteryzuje się tym, że jest drewnem litym, klejonym, czterostronnie struganym a następnie jest fazowane oraz suszone do 16% wilgotności.
Drewno KVH spełnia wszelkie normy i standardy, a jego produkcja jest kontrolowana przez certyfikujące instytuty zewnętrzne.
Używanie drewna KVH zapewnia, że konstrukcja jest stabilna poprzez wytrzymałość i utrzymywanie wymiarów drewna, dlatego stawiamy na drewno KVH.

PIANA POLIURETANOWA PUR

Docieplenie domu w technologii szkieletowej zapewnia użycie trwałej, ciepłej i oddychającej otwarto komórkowej piany poliuretanowej PUR.
Zastosowanie piany do izolacji termicznej odpowiada za jeszcze większą oszczędność energii a co za tym idzie, oszczędności budżetu na koszty ogrzewania domu. Piana PUR nakładana jest metodą natryskową pomiędzy konstrukcję szkieletową, dzięki temu całkowicie eliminujemy ryzyko powstawania pustych przestrzenia oraz mostków termicznych. Dodatkową zaletą piany otwarto komórkowej jest fakt, że pracuje i amortyzuje każde, nawet mikroskopijne ruchy ścian budynku.
PŁYTY FERMACELL
Do wykończenia ścian na zewnątrz używamy płyty FERMACELL.
Płyta Fermacell to innowacyjny materiał konstrukcyjny, który jest w stanie zastąpić każdą inną płytę konstrukcyjną, jednocześnie stanowiąc lepsze poszycie ścian ze względu na swoje wyjątkowe właściwości.
Płyta FERMACELL to sprawdzoną jakość dzięki wyjątkowej, kompleksowej koncepcji, która rozpoczyna się już w procesie produkcji. Płyty gipsowo-włóknowe FERMACELL są złożone z gipsu i włókien celulozy, uzyskiwanych w procesie recyklingu.

A ile zajmie budowa mojego domu?
Tak właśnie działamy – szybko i sprawnie.
Budujemy nawet w 3 miesiące!
Wybierając nas do budowy swojego domu, zyskujesz czas, oszczędzasz pieniądze i masz gotowy dom za 3 miesiące!
Zapewniamy
1.
Przygotujemy projekt indywidualny dostosowany do potrzeb i wymagań inwestorów.
2.
Pomożemy z zebraniem dokumentacji do pozwolenia na budowę.
3.
Możemy pomóc w uzyskaniu kredytu na budowę domu.
4.
Zapewniamy kierownika budowy na każdy etap prac wykonywanych przez naszą firmę.
5.
Zapewniamy 50 lat gwarancji na konstrukcję domu.
6.
Dajemy 5 lat gwarancji wykonawczej.

Zobacz jak wiele otrzymujesz
Tylko teraz
Mega promocja
Umów się z nami na rozmowę jeszcze w tym miesiącu, a projekt domu otrzymasz zupełnie za DARMO!
Dlaczego warto uzyskać pozwolenie na budowę?
Wszystkie nasze domy budujemy po uzyskaniu pozwolenia na budowę. Poniższa tabela i porównanie obu procedur powinna dać odpowiedź na pytanie: dlaczego warto uzyskać pozwolenie na budowę?
| POZWOLENIE | ZGŁOSZENIE – dom do 70 m2 zabudowy | |
|---|---|---|
| Co można wybudować | Budynek mieszkalny o dowolnym metrażu. | Budynek jednorodzinny maksymalnie dwukondygnacyjny o powierzchni zabudowy do 70 m2, czyli powierzchnia podłogi około 60 m2 |
| Ograniczenia | Można budować dla siebie, na sprzedaż lub wynajem – brak ograniczeń w tym zakresie. | Musi być budowany wyłącznie w celu zaspokojenia własnych potrzeb mieszkaniowych inwestora (składa się oświadczenie pod rygorem odpowiedzialności karnej). Budynku nie można sprzedać ani wynająć. |
| Dokumentacja | Wniosek z załącznikami: projekt budowlany sporządzony przez projektantów z uprawnieniami. Przygotowaniem dokumentacji zajmie się nasza firma. | Wniosek z załącznikami: projekt zagospodarowania działki lub terenu oraz projekt architektoniczno-budowlany. |
| Miejscowy plan zagospodarowania przestrzennego | Inwestycja musi spełniać wymagania planu miejscowego lub być zgodna z decyzją o warunkach zabudowy jeśli nie ma MPZP. | W przypadku braku miejscowego planu zagospodarowania przestrzennego, wydanie decyzji o warunkach zabudowy dla domów do 70m2 ma nastąpić w terminie 21 dni. Działka musi być budowlana lub rekreacyjna o powierzchni min. 500 m2. |
| Rozpoczęcie budowy | Trzeba zawiadomić nadzór budowlany o zamierzonym terminie rozpoczęcia budowy. | Budowa domów do 70 m2 będzie wymagała zawiadomienia organów nadzoru budowlanego oraz projektanta sprawującego nadzór autorski nad zgodnością realizacji budowy z projektem. |
| Kierownik budowy | Wymagany jest kierownik budowy. Przy budowie z nami otrzymują Państwo usługi kierownika gratis do budowy domu na wszystkie etapy prac prowadzone przez naszą firmę. | Nie trzeba kierownika budowy. Jeśli rezygnujemy z usług kierownika, nadzór nad budową i pracami prowadzi inwestor i musi złożyć oświadczenie o przejęciu odpowiedzialności za kierowanie budową. |
Referencje
Poznaj opinie naszych zadowolonych klientów.
BUDUJĄC Z NAMI
OSZCZĘDZASZ CZAS I PIENIĄDZE
SUPERDOM DREWNIANY
SUPERDOM YTONG
CZAS NA FORMALNOŚCI, DOKUMENTACJĘORAZ NIEZBĘDNE POZWOLENIA
FUNDAMENT
BUDOWA
Masz pytania?
Oto najczęściej zadawane
Napisz do nas
* Informacje zawarte w niniejszej wycenie nie są prawnie wiążące i nie stanowią oferty handlowej, w tym w rozumieniu art. 66 § 1 Kodeksu cywilnego
8
osób właśnie ogląda ten projekt
























