Oferta specjalna budowy domu wg. projektu Dom Miły – 100,00 m² w cenie 355 000 zł netto
Opis domu
Projekt parterowego domu jednorodzinnego z dwuspadowym dachem, idealny dla posiadaczy średniej szerokości działki.
Dom charakteryzuje się klasyczną bryłą, która idealnie wpasuje się w każdą działkę, niezależnie od otoczenia.
W zależności od zastosowanego wykończenia elewacji może on zyskać klasyczny lub bardzo nowoczesny charakter.
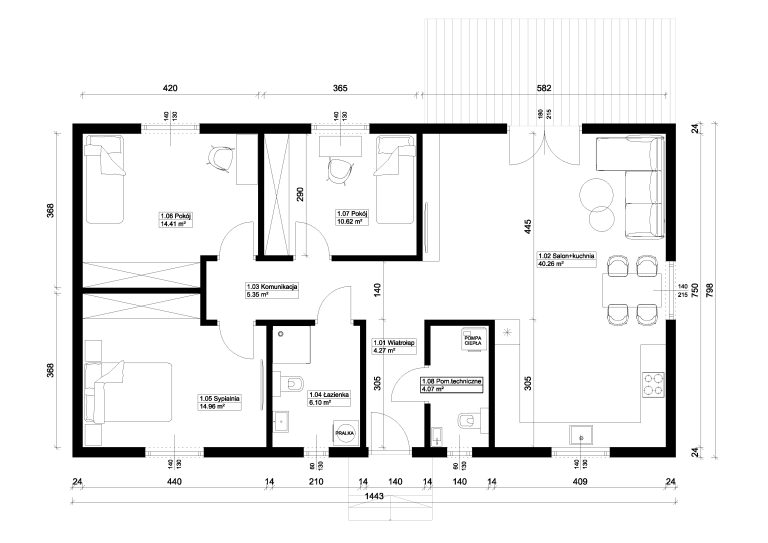
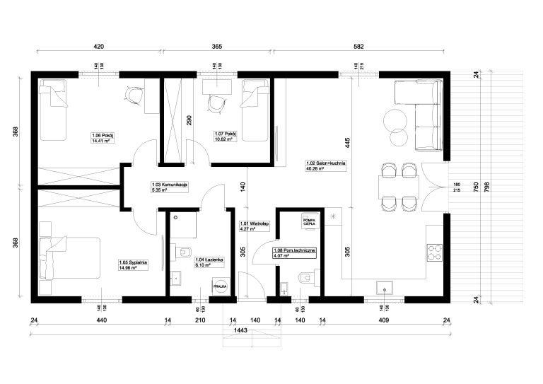
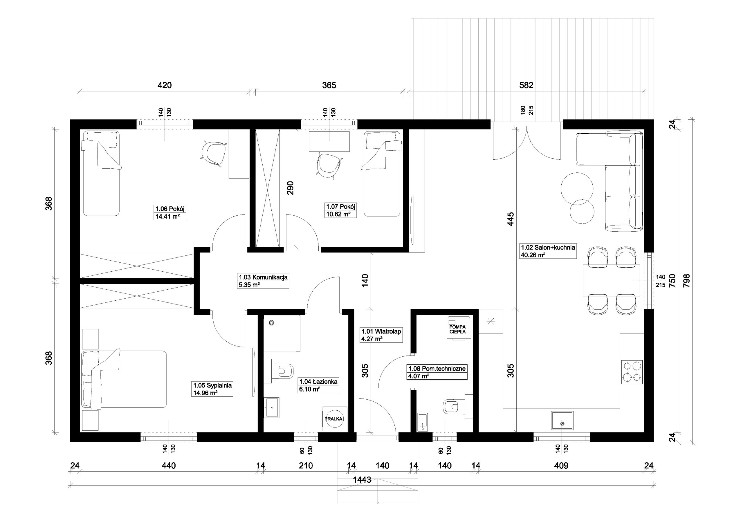
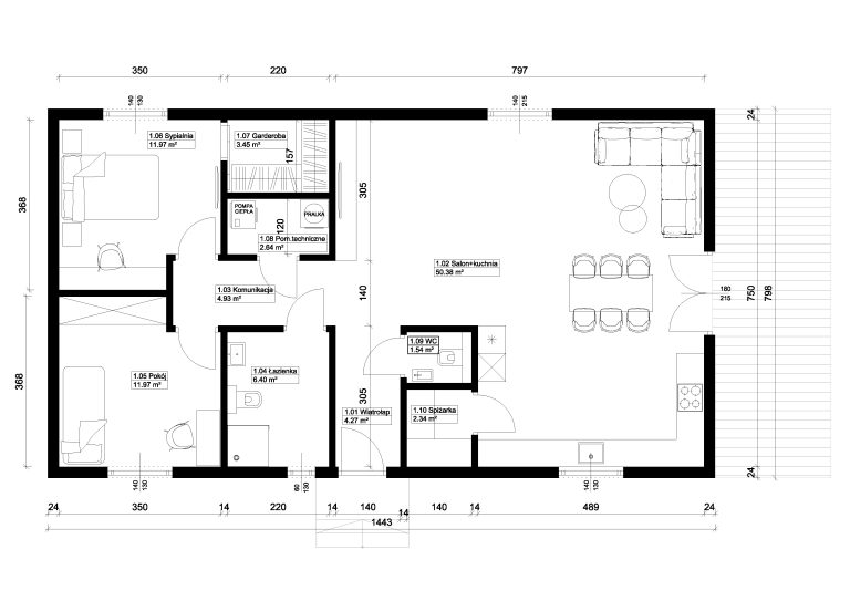
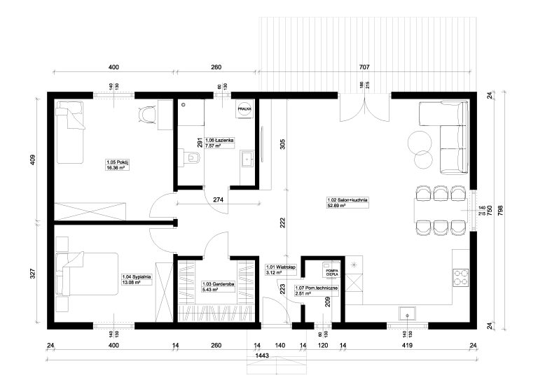
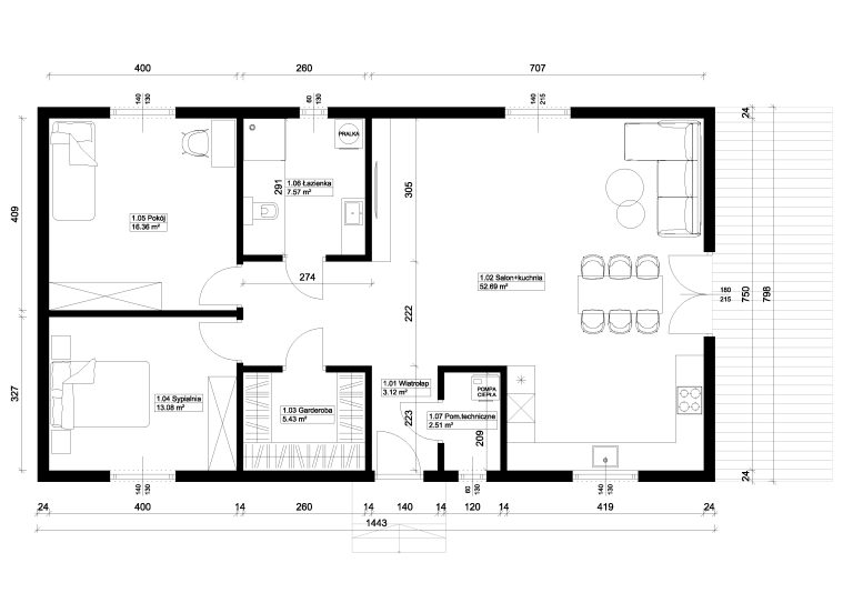
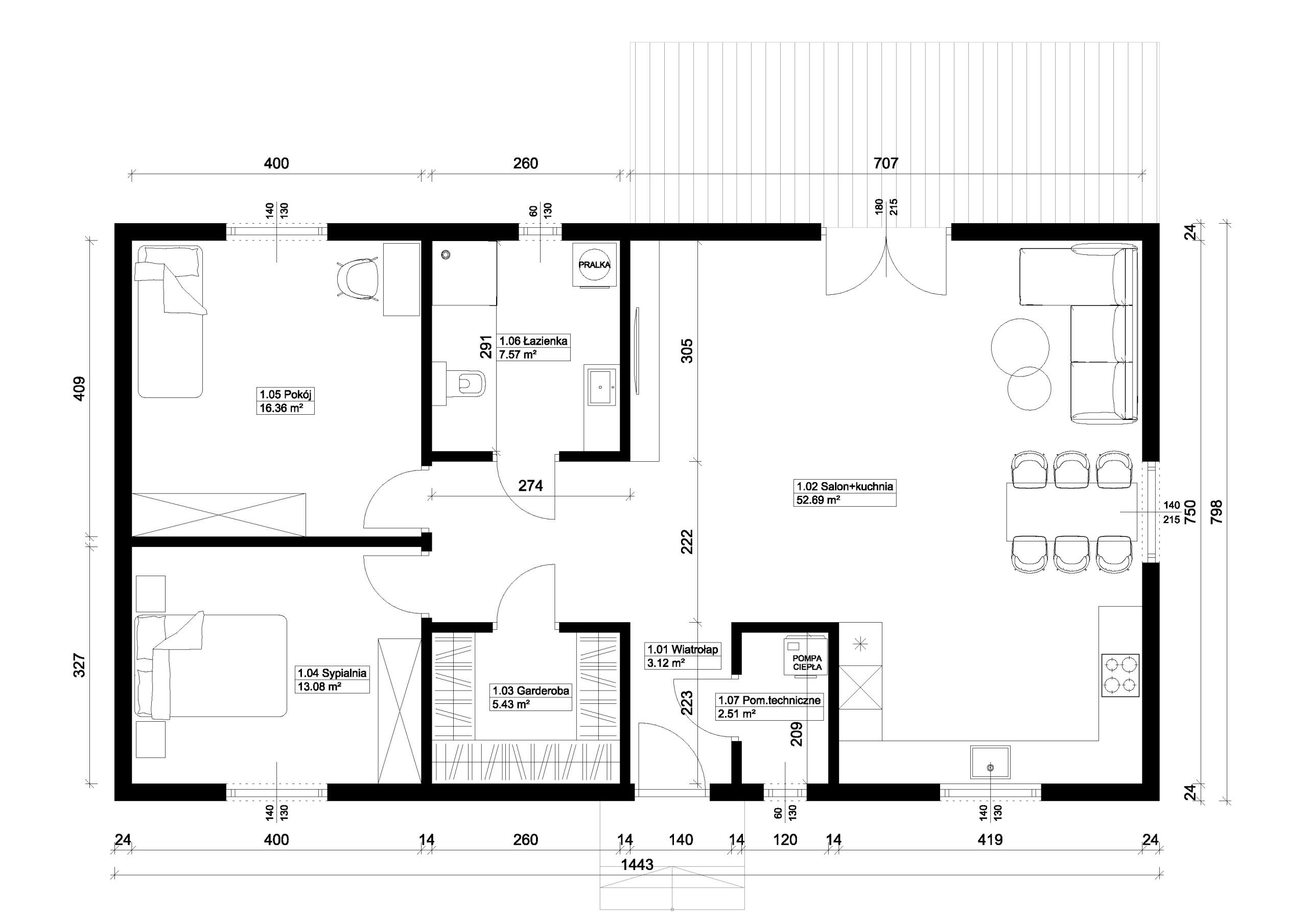
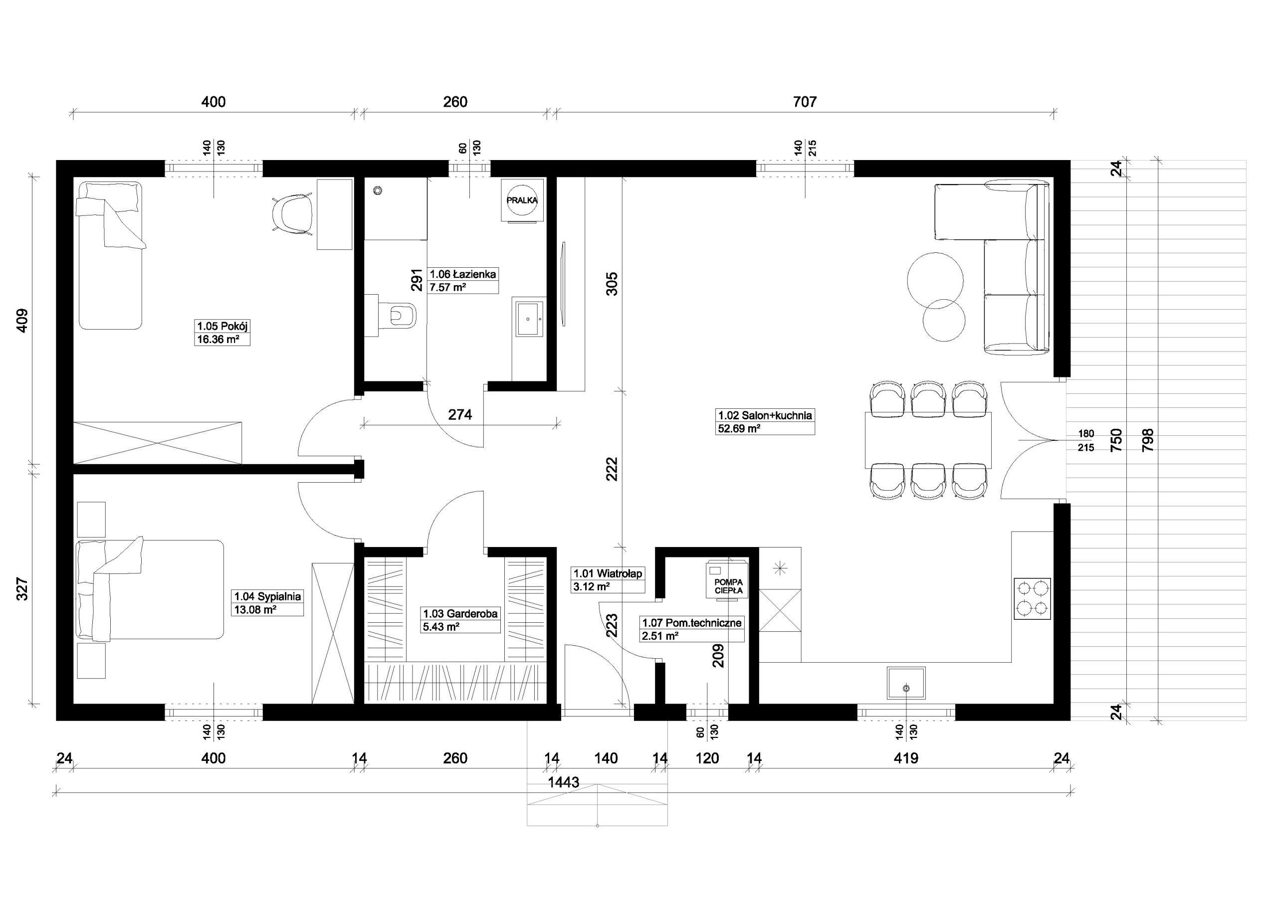
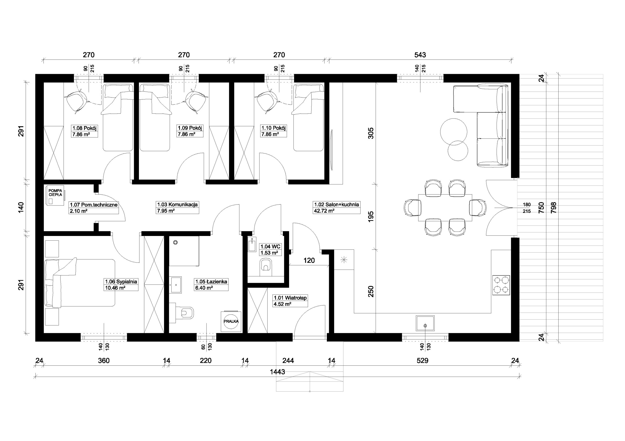
Dom został podzielony na dwie strefy, dzienną i nocną. W części nocnej znajdują się trzy przestronne sypialnie oraz duża łazienka z miejscem na wannę i prysznic, w części dziennej znajdziemy salon z jadalnią i otwartą kuchnią.
Ten dom możesz mieć również w wersji z płaskim dachem.
Jest to idealny projekt dla trzy lub czteroosobowej rodziny.
Ten dom możemy wybudować w różnych wersjach dachu:
dach płaski
(dla domu parterowego)
dach dwuspadowy
w stylu nowoczesnej stodoły
dach tradycyjny dwuspadowy
dach czterospadowy
Koszt budowy
Ten dom może być Twój już w kwocie
355 000
PLN netto
Spełnij z nami swoje marzenia. Wybudujemy dla Ciebie ciepły, komfortowy dom, w którym odpoczniesz po pracy i poczujesz się wyjątkowo dobrze.
Nasza specjalna oferta domów zapewnia najlepsze materiały i wykonanie w przystępnej cenie. A za zaoszczędzone pieniądze wykończysz ogród i zorganizujesz najlepszego grilla na jakim byli Twoi znajomi w życiu.
Wszyscy będą Ci zazdrościć!
Układ pomieszczeń
Nasza specjalna oferta daje Ci możliwość wyboru jednego z wielu gotowych układów pomieszczeń. Możesz również wprowadzać zmiany w układzie tak, żebyś spełnił Twoje potrzeby.
Powierzchnia użytkowa
100,00 m²
Najważniejsze cechy
3 sypialnie
duży salon
idealny dla 2+2
Powierzchnia użytkowa
100,00 m²
Najważniejsze cechy
2 sypialnie
duży salon
idealny dla 2+1
Powierzchnia użytkowa
100,00 m²
Najważniejsze cechy
2 sypialnie
duży salon
idealny dla 2+1
Powierzchnia użytkowa
100,00 m²
Najważniejsze cechy
3 sypialnie
duży salon
idealny dla 2+2
Powierzchnia użytkowa
100,00 m²
Najważniejsze cechy
4 sypialnie
duży salon
idealny dla 2+3
Oferta specjalna
Jeśli podane wersje rzutów nie spełniają Twoich oczekiwań – nie martw się – możemy specjalnie dla Ciebie przygotować dowolną, indywidualną koncepcję.
Poznaj nas lepiej i powierz nam budowę swojego domu
Domy, które budujemy są
Solidne
Twój dom zostanie wybudowany z najlepszych materiałów jakimi dysponujemy. Jego ściany będą solidne i mocne. Nasze biuro architektoniczne dba o to żebyś czuł się w swoim domu bezpieczny.
Energooszczędne
Materiały z których budujemy zapewniają Ci niesamowicie energooszczędny dom na miarę XXI wieku, spełniający wszystkie normy i standardy nowoczesnego, ciepłego budownictwa.
Szybko powstają
Doświadczona kadra pracowników, która jest odpowiedzialna za budowę Twojego domu to gwarancja szybkiego czasu jego powstawania. Twój dom wybudujemy w 3 TAK TYLKO 3 miesięce od wejścia na plac budowy!
Adaptacja projektu
Jesteśmy otwarci na Twoje indywidualne potrzeby, dlatego możesz wprowadzić zmiany w tym projekcie.
Nasze biuro projektowe pomoże Ci dobrać najbardziej optymalny układ pomieszczeń.
Technologia szkieletowa
Konstrukcja z Drewna KVH
Konstrukcja domu w technologii szkieletowej jest oparta na drewnie KVH – to nowoczesny, solidny materiał konstrukcyjny o szerokim zastosowaniu w budownictwie. Drewno KVH charakteryzuje się tym, że jest drewnem litym, klejonym, czterostronnie struganym a następnie jest fazowane oraz suszone do 16% wilgotności.
Drewno KVH spełnia wszelkie normy i standardy, a jego produkcja jest kontrolowana przez certyfikujące instytuty zewnętrzne.
Używanie drewna KVH zapewnia, że konstrukcja jest stabilna poprzez wytrzymałość i utrzymywanie wymiarów drewna, dlatego stawiamy na drewno KVH.

PIANA POLIURETANOWA PUR

Docieplenie domu w technologii szkieletowej zapewnia użycie trwałej, ciepłej i oddychającej otwarto komórkowej piany poliuretanowej PUR.
Zastosowanie piany do izolacji termicznej odpowiada za jeszcze większą oszczędność energii a co za tym idzie, oszczędności budżetu na koszty ogrzewania domu. Piana PUR nakładana jest metodą natryskową pomiędzy konstrukcję szkieletową, dzięki temu całkowicie eliminujemy ryzyko powstawania pustych przestrzenia oraz mostków termicznych. Dodatkową zaletą piany otwarto komórkowej jest fakt, że pracuje i amortyzuje każde, nawet mikroskopijne ruchy ścian budynku.
PŁYTY FERMACELL
Do wykończenia ścian na zewnątrz używamy płyty cementowej FERMACELL.
Płyta Fermacell to innowacyjny materiał konstrukcyjny, który jest w stanie zastąpić każdą inną płytę konstrukcyjną, jednocześnie stanowiąc lepsze poszycie ścian ze względu na swoje wyjątkowe właściwości.
Płyta FERMACELL to sprawdzoną jakość dzięki wyjątkowej, kompleksowej koncepcji, która rozpoczyna się już w procesie produkcji. Płyty gipsowo-włóknowe FERMACELL są złożone z gipsu i włókien celulozy, uzyskiwanych w procesie recyklingu.

A ile zajmie budowa mojego domu?
Tak właśnie działamy – szybko i sprawnie.
Budujemy nawet w 3 miesiące!
Wybierając nas do budowy swojego domu, zyskujesz czas, oszczędzasz pieniądze i masz gotowy dom za 3 miesiące!
Zapewniamy
1.
Przygotujemy projekt indywidualny dostosowany do potrzeb i wymagań inwestorów.
2.
Pomożemy z zebraniem dokumentacji do pozwolenia na budowę.
3.
Możemy pomóc w uzyskaniu kredytu na budowę domu.
4.
Zapewniamy kierownika budowy na każdy etap prac wykonywanych przez naszą firmę.
5.
Zapewniamy 50 lat gwarancji na konstrukcję domu.
6.
Dajemy 5 lat gwarancji wykonawczej.

Zobacz jak wiele otrzymujesz
Tylko teraz
Mega promocja
Umów się z nami na rozmowę jeszcze w tym miesiącu, a projekt domu otrzymasz zupełnie za DARMO!
Referencje
Poznaj opinie naszych zadowolonych klientów.
BUDUJĄC Z NAMI
OSZCZĘDZASZ CZAS I PIENIĄDZE
SUPERDOM DREWNIANY
SUPERDOM YTONG
CZAS NA FORMALNOŚCI, DOKUMENTACJĘORAZ NIEZBĘDNE POZWOLENIA
FUNDAMENT
BUDOWA
Masz pytania?
Oto najczęściej zadawane
Napisz do nas
* Informacje zawarte w niniejszej wycenie nie są prawnie wiążące i nie stanowią oferty handlowej, w tym w rozumieniu art. 66 § 1 Kodeksu cywilnego
8
osób właśnie ogląda ten projekt





































